合肥装饰公司>合肥装修公司>办公室装修>厂房装修>展厅装修>办公楼设计装修 > 案例展示 > 民宿/酒店/别墅/住宅 > 厵村民宿招商营销中心装修案例
巢湖厵村精品度假酒店CG01办公室装修案例
项目类型:民宿
项目设计:设计B组
项目面积:1200㎡
所在地:巢湖市黄麓镇
设计说明:
巢湖厵村精品民宿度假酒店是国家5A级旅游景区、国家生态旅游示范区规划、建设和运营,将其打造成一个集“自然风景观光区、精品民宿体验区、休闲娱乐引领区、健康养生康养区、企业发展拓展区、亲子游玩研学区、生态农业科教区”七大旅游产业于一体综合性一站式旅游目的地。
该案例为度假酒店内部办公室装修。设计师选用现代简约风,其着重点就在于简,即外形简洁,室内空间朴素、大方,但其功能性强。在选材上,运用了大量的天然古堡灰石材、原木色木饰面、灰色布艺硬包、黑色不锈钢线条及本色的不锈钢水波纹板等等。颜色没有任何花哨,简单明了,更加符合办公室的严谨要求,整体布局规划合理,格调简洁、素雅。

一层平面图

门厅效果图
门厅:此楼为员工独立办公楼使用,无需设置接待前台,入门直接为公司形象布景。色调以灰色为主色调,地面及墙面用古堡灰大理石铺贴,承重柱使用爵士白点缀,加上一些灯光,感觉端庄典雅。

沙盘区效果图

沙盘区360全景效果图
沙盘区:沙盘区展示整个园区模型,对面是员工休闲区,设计了水吧台及大面积酒柜,活力红的柜板,内藏灯带,温暖而活力四射,让安全感与刺激性并驾齐驱,是充满安心与值得托付的颜色。石膏板吊顶做凹凸造型,内嵌LED筒灯,简单而又区域分明。

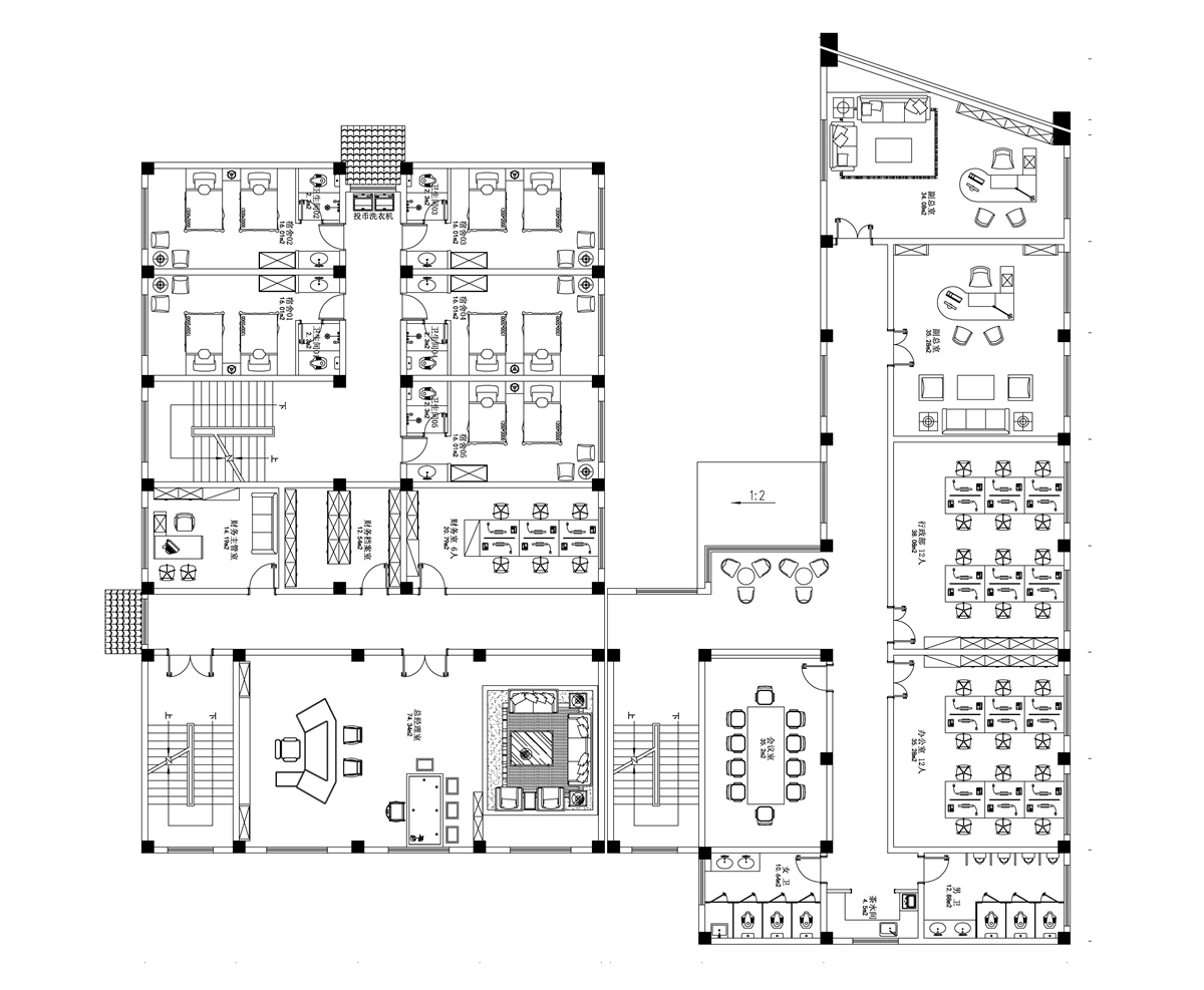
二层平面图

接待区及茶台效果

办公区效果图

总经理办公室展开效果图
总经理办公室:此区域采用中国传统的室内设计,融合了庄重与优雅双重气质。室内有75m2,顶面石膏板满吊顶,没有做区域分隔,只是地面采用深灰、浅灰色大理石,以波导线做修饰。中式风格的古色古香与时髦的现代风格的天然联接,使生活的实用性和对传统文化的寻求同时得到了满意,这种绝妙的组合给人以激烈的视觉意志力,成为时髦与古典的柔媚结合。
上一篇:巢湖厵村民宿休闲餐厅
下一篇:日式民宿度假酒店装修