合肥装饰公司>合肥装修公司>办公室装修>厂房装修>展厅装修>办公楼设计装修 > 案例展示 > 售楼部/样板间 > 售楼部 > 含山.锦绣华城售楼部新中式装饰装修工程
项目类型:新中式售楼部装修 专业售楼部装修设计公司 合肥售楼部装修公司
项目设计:半山装饰售楼部设计部A组
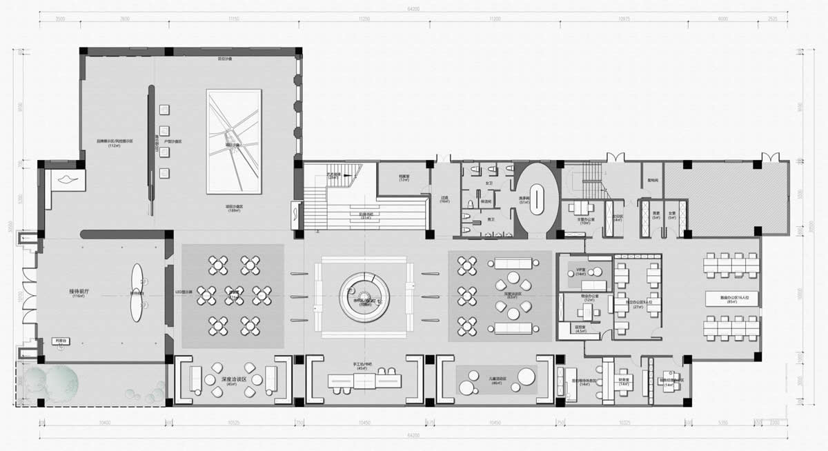
项目面积:1000㎡
所在地:安徽·马鞍山市
设计说明:
本售楼部装修项目位于马鞍山市含山县。设计师选用新中式风格表现此项目。
提到新中式风格空间设计,大家的第一印象,便是和谐包容,传统与现代交融碰撞出设计的灵感火花,给我们带来诗意空间体验,在新中式的诗意从容中,裹挟着一丝金石之气,给大家带来了耳目一新的感受。

本售楼部装修项目以中式宅院的传统元素,营造自然雅致的梦想栖息之地,以现代主义与东方古典想结合绘制自然融合的唯美盛景,打造诗意从容的日常优雅生活。
本案采用实木做主材,在灯具上融入金属及水晶元素提升空间质感,将传统的元素运用现代的手法进行演绎,以中式元素的饰品、花架来提升典雅的品味,让山水、诗赋、书画等有襄阳风骨的事物流入空间,完成寄情。整个营销中心将传统文化完美地融合进现代生活,造就空间的内涵、端正与宏伟。

售楼部装修主角——沙盘,以最完美的形态呈现。整个区域除了从入门处的穿堂光线,犹如山峦层层叠叠的水晶沙盘吊灯也对室内光线进行了补充。沙盘大灯在镜面内与镜面外形成呼应,空间从视觉上得以扩大。

企业文化区抛弃了冗杂繁复的装饰,藤编吊顶嵌入现代镜面造型灯,犹如一束姿态优雅的迎客红松渲染出古典雅致的氛围。

沙盘区与洽谈区两区相互开放,功能泾渭分明。呼应空间的整体气质,设计师选择了简约座椅,一抹鲜艳的红色绽放在桌上,打破了石材的清冷质感,古朴与热烈两种不同的气质在此处交汇流淌。顶灯犹如绵长蜿蜒的汉水,流动的灯光宛如游鱼给洽谈区带来了生动的气息。

以匠艺精工深究帷幄于时代的建筑艺术打造新;以美好致敬人居岁月归家即是幸福!

安徽半山装饰工程有限公司是一家从事多年的室内设计装饰装修企业,具有总包叁级、装饰装修专项施工乙级以及工程设计专项资质,主要致力于办公室装修、写字楼装修、厂房装修、展厅装修、售楼部装修、样板间装修、店面店铺装修、学校装修、及其它商业空间装修设计施工一体化服务。咨询电话:18919604649
下一篇:暂无