合肥装饰公司>合肥装修公司>办公室装修>厂房装修>展厅装修>办公楼设计装修 > 案例展示 > 安徽久壬电气科技有限公司办公楼、车间厂房翻新改造项目
项目类型:办公楼翻新改造
项目设计:设计A组
项目总面积:3000㎡
地址:合肥蜀山区联东U谷
设计说明:
本项目为安徽久壬电气科技公司办公楼翻新改造、车间厂房翻新改造及一楼展厅装修,设计师采用现代简约风格,运用不锈钢装饰线条、磁吸轨道灯、可折叠屏风、木制装饰板及塑胶地板等新型材料,营造出一种更加时尚、高效的工作环境。
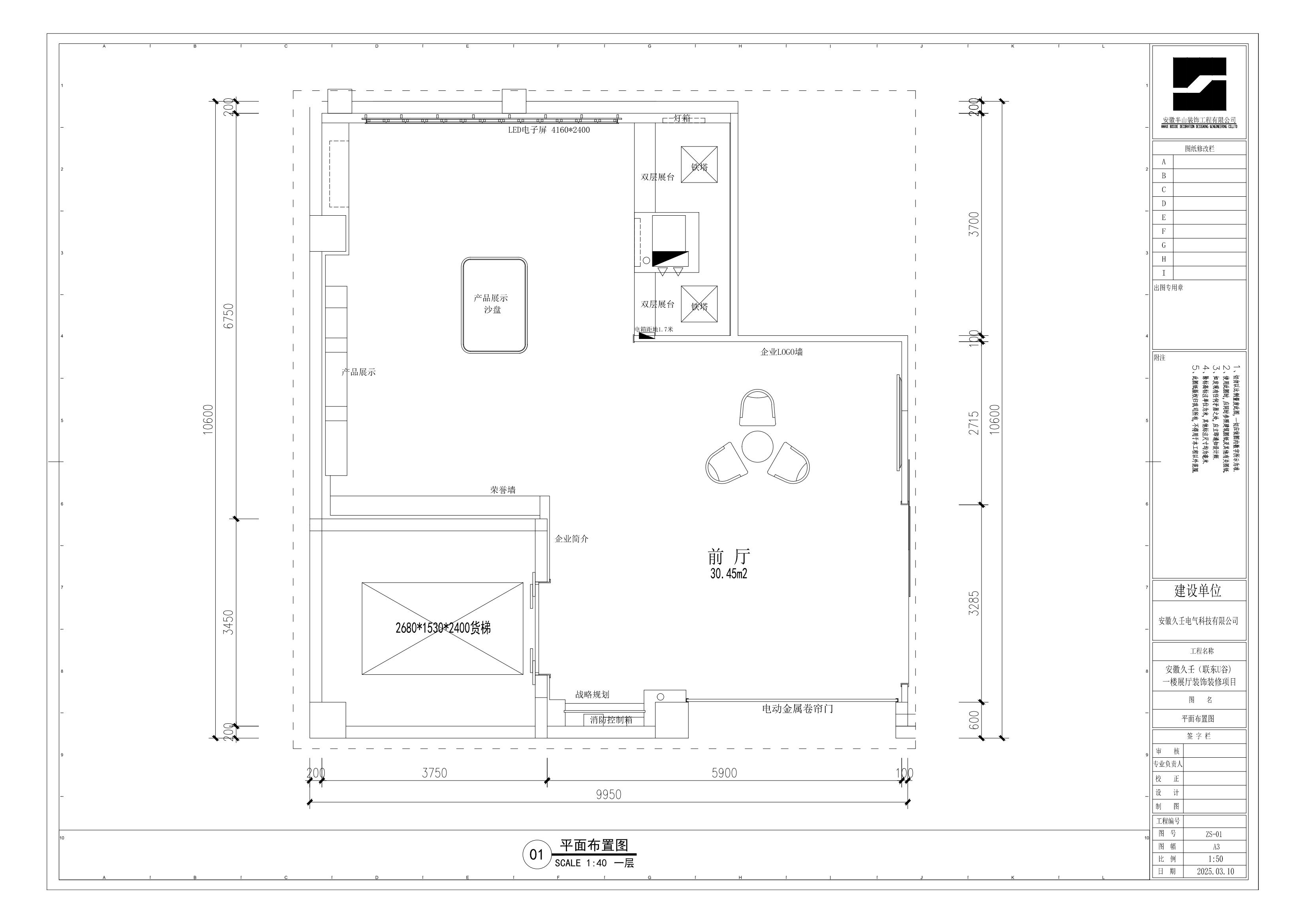
一层展厅

一层为企业展厅,设计师采用现代科技风格,整个展厅利用线条灯及简单墙面造型,简单大方;
展厅区入口、企业办公区入口及车间厂房入口处共用一个过道,过道区域选用灰色地坪漆,而整个展厅内部采用灰色塑胶地板;
展厅形象墙,采用浅色木纹碳晶板,其独特的质感和丰富的层次感,能够提升空间的整体质感。它具有免漆、易打理环保等优点;


二层车间厂房


拆除原有地砖地面,找平后铺设灰色地坪漆,地坪漆是近几年车间厂房装修用的比较多的地面材料之一,具有耐磨性强、抗腐蚀性、附着力好、容易清洁等优点
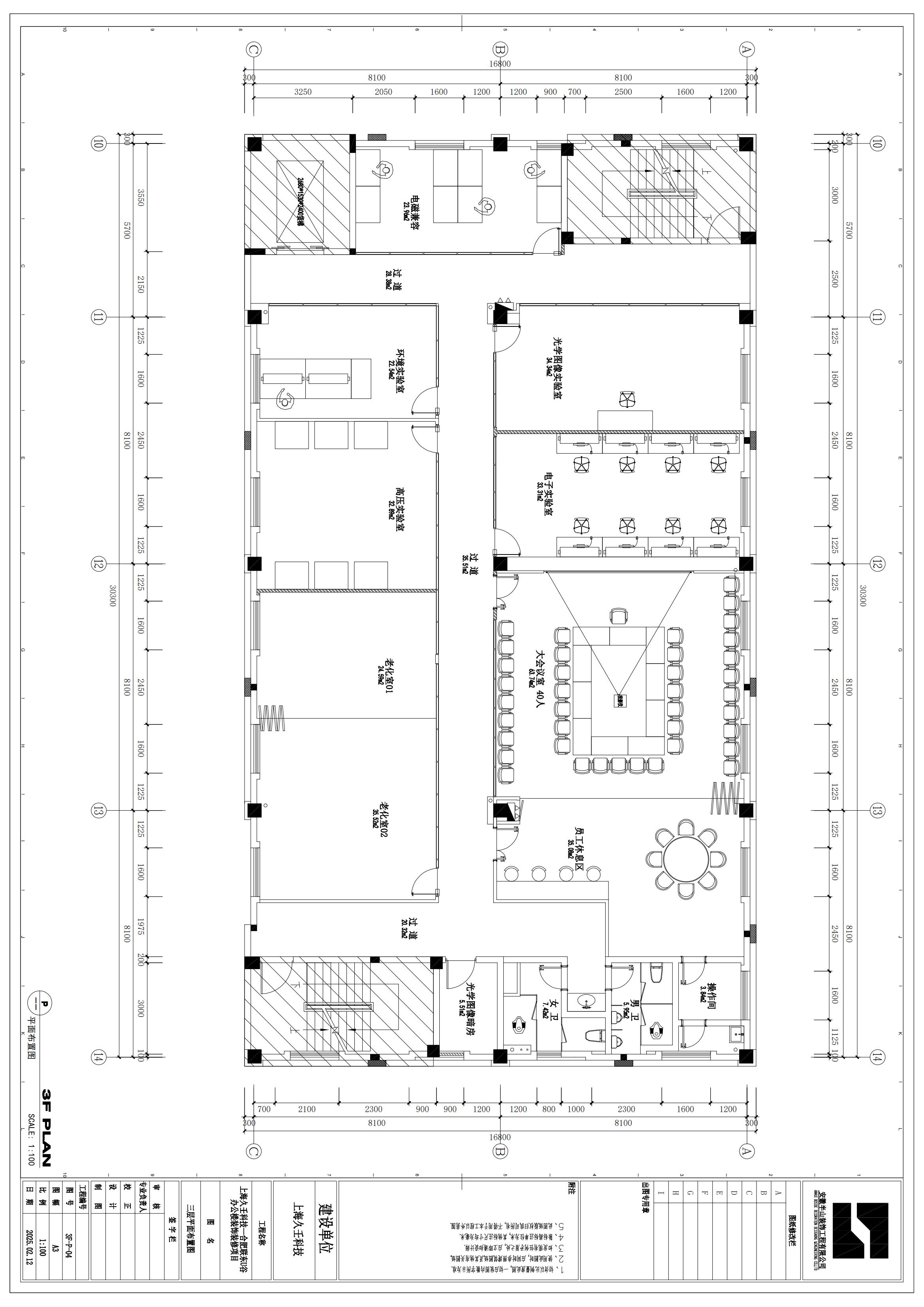
三层实验室

三层主要设为企业实验室、员工休息区及企业大会议室,会议室与员工休息区中间用可折叠屏风隔开,折叠屏风可以开放也可以封闭,单独用时一分为二,屏风收起来时可以合二为一。




实验室装修采用原顶喷涂深灰色乳胶漆,墙面刷白不做复杂造型,地面铺设防静电地板,以简单实用为主。
四层员工办公区

过道:原顶喷涂深灰色乳胶漆,过道采用双层玻璃隔断,保证了办公室过道的通透性。

卫生间顶面采用防水石膏板,地面铺设600*600mm仿石材地砖,隔断采用定制抗倍特板,此板具有优异的耐用性和防潮性能。
安徽半山装饰工程有限公司是一家从事多年的室内设计装饰装修企业,具有总包叁级、装饰装修专项施工乙级以及工程设计专项资质,主要致力于办公室装修、办公楼装修、厂房装修、展厅装修、店面店铺装修及其它商业空间装修设计施工一体化服务。
咨询电话:18919604649
上一篇:淮北商场精品店铺装修设计项目