合肥装饰公司>合肥装修公司>办公室装修>厂房装修>展厅装修>办公楼设计装修 > 售楼部/展厅 > 淮北华松 皖溪佳苑 售楼部翻新改造工程
项目类型:售楼部
项目设计:设计A组
项目面积:1200㎡
所在地:淮北
设计说明:
淮北华松房地产集团公司深耕淮北20余年,专注于淮北房地产开发,商城运营,汽车销售等行业的经营与开发。皖溪佳苑为华北华松房地产集团公司与2020年底新启动的住宅及商业性质的房地产开发项目,占地约50000平米。
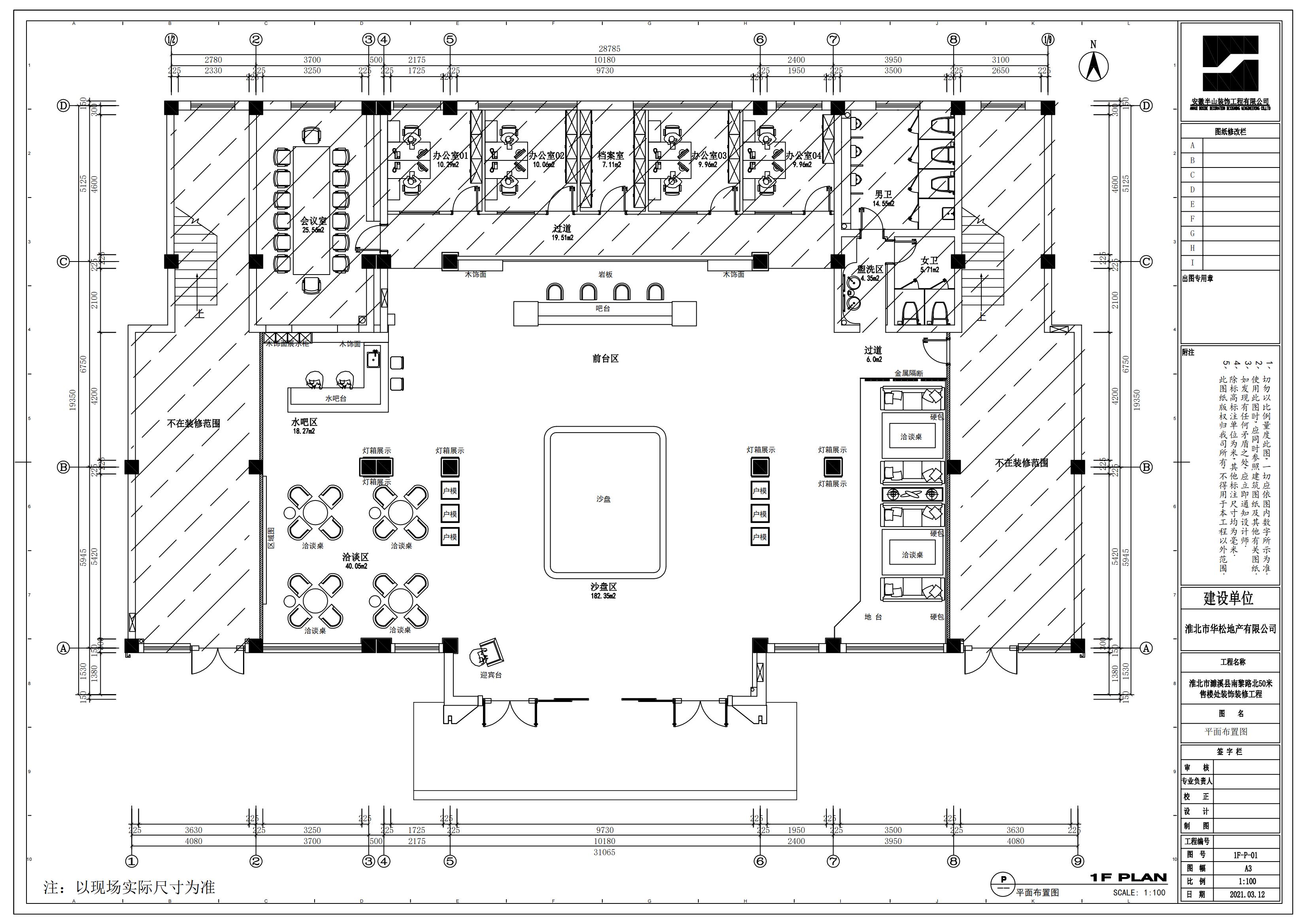
该售楼部装修项目主要采用现代简约风格,设计师通过浅色石材,复古灰色铝板,艺术漆,以及局部采用精品不锈钢装饰等装饰手法将售楼部打造成简约不简单,万物皆有灵,皆在匠心运。

设计师通过实地勘测,利用原始布局,对现场进行功能分区,根据每个不同区域的使用需求和频率,合理划分空间,使各个功能区域既相互独立又相互联系,提高空间的整体使用效率。


门头对比:原门头破旧,局部已经掉落;
新做门头采用全铝板包裹,部分区域定制冲孔铝板;门头两边造型内置灯带,

形象墙对比

形象墙材质分析

洽谈区

卡座区:墙面采用布艺硬包,地面抬高100mm,边留灯带,面层铺设强化地板;小空间既独立又与整个空间相互联系。

原墙面采用老式壁纸和淘汰花色的木饰面组合,视觉效果相对单一、传统,缺乏现代感和时尚感。花色过时使空间显得陈旧、缺乏活力,难以满足现代人对审美和品质的追求。
现墙面采用艺术漆、布艺硬包、木饰面、不锈钢、岩板及天然石材等新型材料;为墙面带来了丰富的视觉层次和独特的装饰效果。艺术漆的质感、布艺硬包的温馨、木饰面的自然、不锈钢的科技感、岩板及天然石材的奢华,这些元素相互融合,能够营造出多样化、个性化的空间氛围,满足不同风格和主题的装修需求。
安徽半山装饰工程有限公司是一家从事多年的室内设计装饰装修企业,具有总包叁级、装饰装修专项施工乙级以及工程设计专项资质,主要致力于办公室装修、办公楼装修、厂房装修、展厅装修、店面店铺装修及其它商业空间装修设计施工一体化服务。
咨询电话:18919604649( 微信同步)
下一篇:阜阳4S店展厅装修设计